Villa le Chos
Bure (Jura) 2016-2018
Maître d’ouvrage : Privé
Programme : Logement
Surface de référence énergétique : zone concernée: 70 m2
Volume SIA : zone concernée: 210 m3
Coût CFC 1-5 : 0.2 Mio
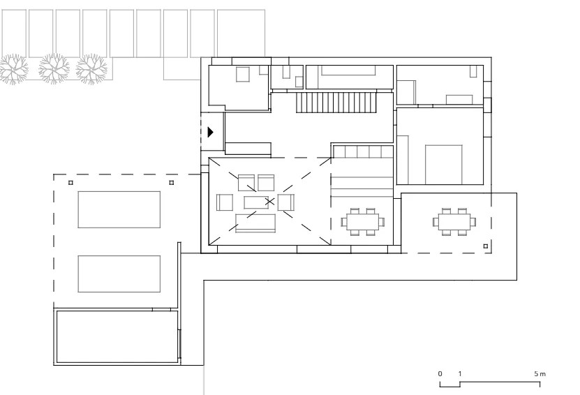
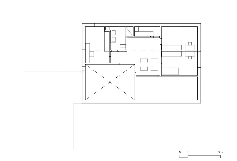
Cette villa familiale s’implante dans un quartier résidentiel. La façade sur rue de la villa est relativement fermée pour garantir la privacité. De la même manière, la dépendance extérieure et le couvert à voitures cherchent à privatiser le jardin. Au rez-de-chaussée se trouvent un wc, la suite parentale, un cellier, la cuisine, la buanderie et le séjour. Celui-ci bénéficie d’une double hauteur sous le toit à deux pans. Des percées visuelles sont cherchées à l’intérieur de l’espace grâce à une fenêtre communiquant entre l’espace jeux des enfants et cette double hauteur. A l’étage on trouve les deux chambres d’enfants, une salle de bains, un rangement ainsi qu’un bureau qui peut également servir de chambre d’ami.
Crédit graphiques
Photos : Tagada Prod
Plans: Coray Vallat architectes
Img. synthèse: Coray Vallat architectes















