VILLA DU COTEAU
Clarens (Vaud) 2021 - en cours
Maître d’ouvrage : Privé
Programme : Logement
Surface de référence énergétique : zone concernée: 33 m2
Volume SIA : zone concernée: 90 m3
Coût CFC 1-5 : –
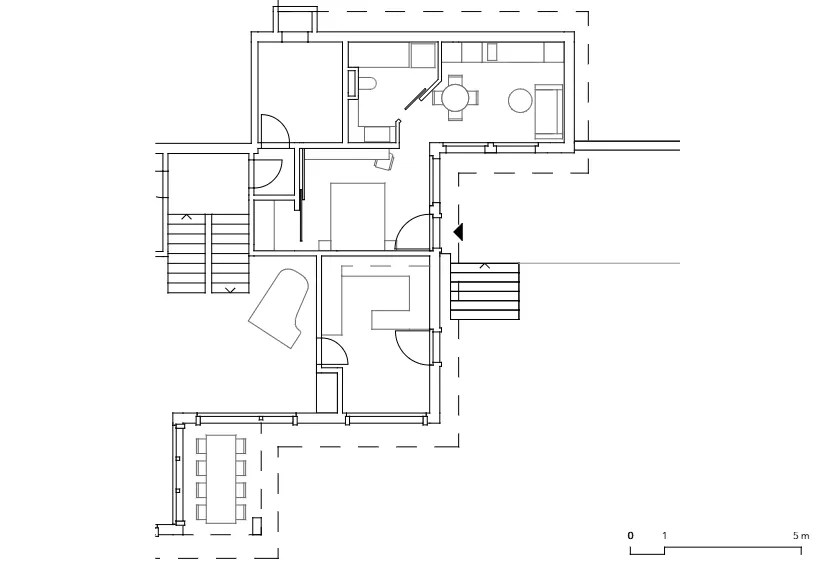
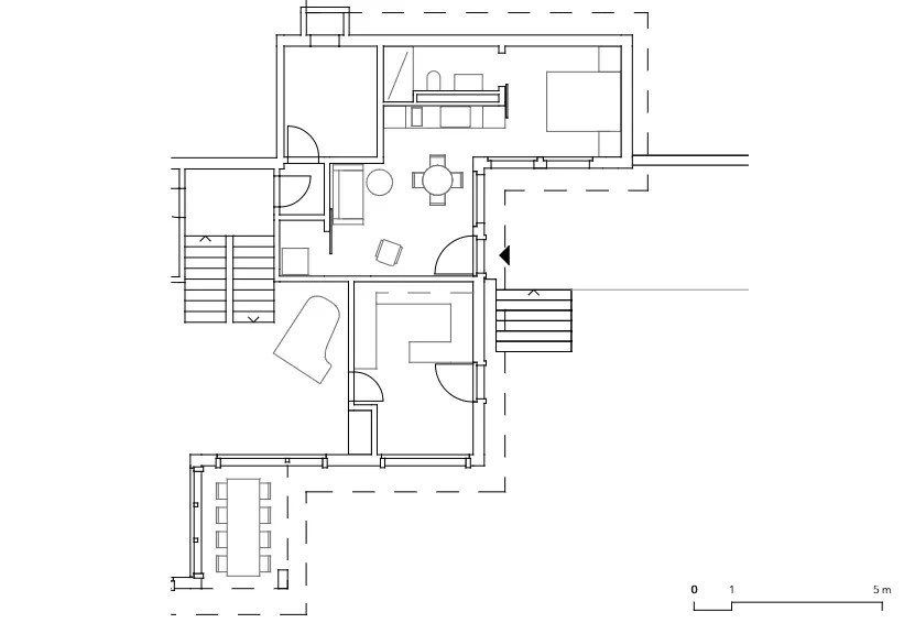
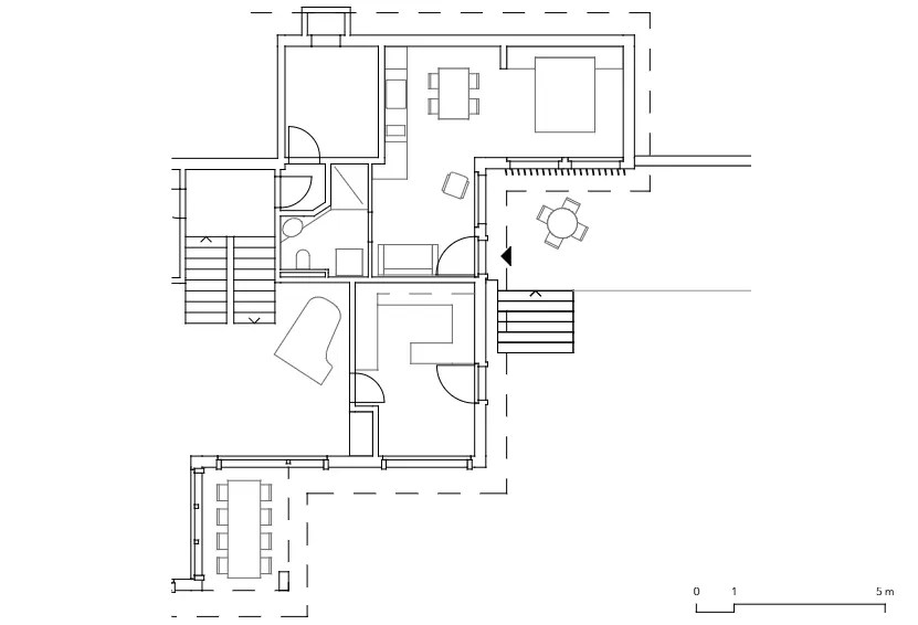
A l’emplacement de l’actuelle buanderie, du local citerne et d’une chambre, les propriétaires souhaitent étudier le potentiel de création d’un studio. L’avant-projet étudie trois possibilités d’organisation. La première variante se présente en un grand espace ouvert avec la salle d’eau à l’emplacement du wc existant. La deuxième variante déplace la salle de bains derrière la cuisine et crée deux espaces distincts ; l’espace de nuit et l’espace de jour. La dernière variante propose de placer la cuisine et l’espace de jour dans l’aile droite afin de bénéficier de la vue.
Crédit graphiques
Photos : –
Plans: Coray Vallat architectes
Img. synthèse: Coray Vallat architectes








