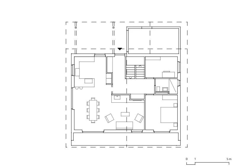
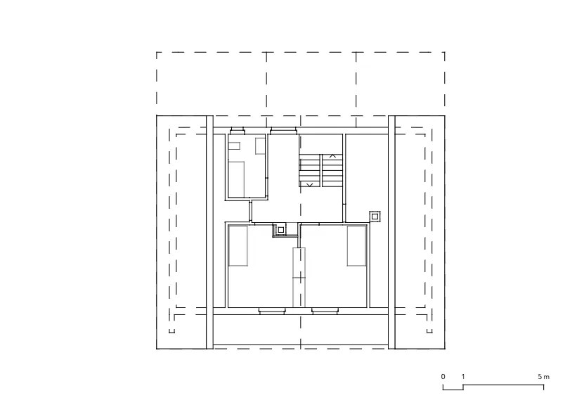
VILLA AU VILLAGE
Le Bémont (Jura) 2020 - 2021
Maître d’ouvrage : Privé
Programme : Logement
Surface de référence énergétique :264 m2
Volume SIA : 878 m3
Coût CFC 1-5 :0.2 Mio
Cette villa familiale des années 80 a été assainie par ses nouveaux propriétaires. Sur la base du CECB + les fenêtres ont été remplacées, le système de chauffage a été changé pour une énergie renouvelable et certains locaux ont nécessité la pose d’isolation supplémentaire. Ces interventions ont permis un gain de 2 classes énergétiques et l’obtention de subventions. Outre ces mesures, les transformations au rez-de-chaussée ont créé un grand espace de vie articulé autour d’un poêle. L’ensemble des salles d’eaux de la villa ont été refaites et les chambres ont également été rafraîchies.
Crédit graphiques
Photos : Coray Vallat architectes
Plans: Coray Vallat architectes
Img. synthèse: –























