MAIRIE
Bure (Jura)
2024 - 2025
Maître d’ouvrage : Public
Programme : Infrastructure
Surface de référence énergétique : 120 m2
Volume SIA : zone concernée: 366 m3
Coût CFC 1-5 : –
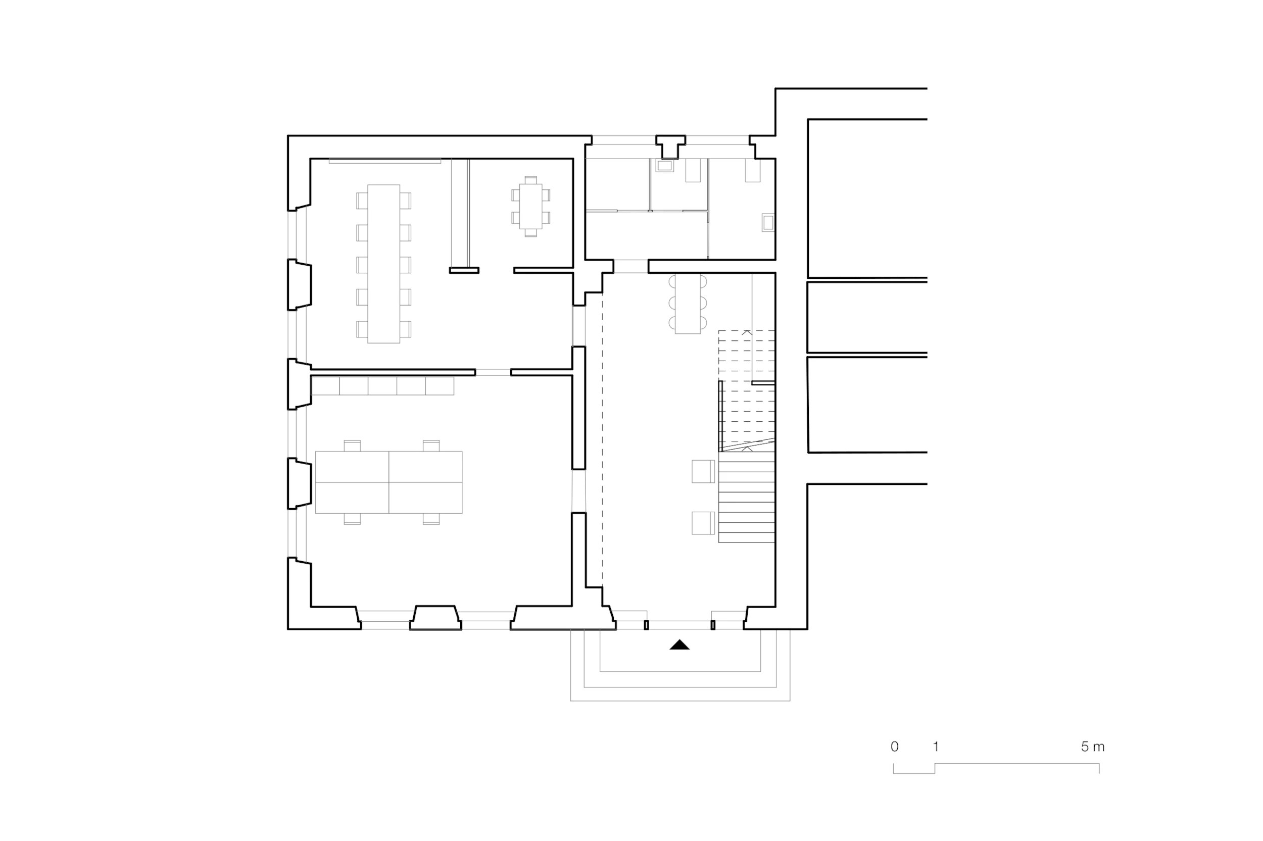
Le projet a consisté en une rénovation ciblée du bâtiment de la Mairie de Bure, visant à améliorer le confort d’usage tout en valorisant le patrimoine bâti existant. Les travaux ont porté principalement sur la rénovation des façades, menée avec soin dans le respect du caractère architectural d’origine.
À l’intérieur, les espaces sanitaires du rez inférieur, utilisés par le corps des sapeurs-pompiers de la commune, ont été entièrement rafraîchis. Au rez supérieur, les WC destinés au personnel administratif ont également été remis à neuf. Un réaménagement de l’espace de pause a été réalisé dans le hall d’entrée afin d’offrir un lieu convivial au personnel communal.
Enfin, une rénovation partielle de la salle du Conseil communal a permis d’en améliorer la fonctionnalité tout en conservant son identité.
L’ensemble de ces interventions a été pensé dans une démarche de préservation du patrimoine et d’adaptation aux besoins actuels des utilisateurs.
Crédit graphiques
Photos : Coray Vallat architectes
Plans: Coray Vallat architectes
Img. synthèse: –













