L'ANCIENNE CURE
Rocourt (Jura) 2022
Maître d’ouvrage : Privé
Programme : Logement
Surface de référence énergétique : 57 m2
Volume SIA : 150 m3
Coût CFC 1-5 : –
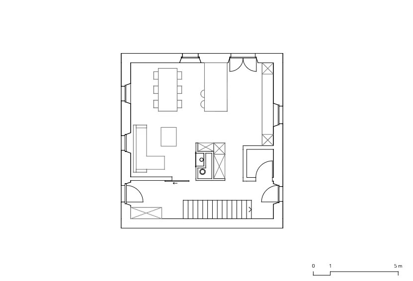
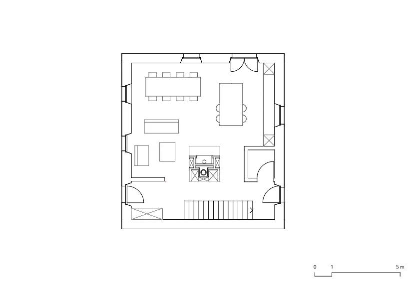
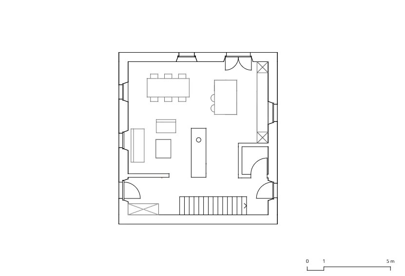
Dans cette ancienne cure, les propriétaires souhaitaient avoir plusieurs variantes d’aménagements de l’espace de vie. Quatre différentes variantes ont étudiés les possibilités spatiales qu’offre cette magnifique bâtisse d’époque.
Crédit graphiques
Photos : Coray Vallat architectes
Plans: Coray Vallat architectes
Img. synthèse: Coray Vallat architectes















