Eimeldingerweg
Bâle (Bâle Ville)
2024 - En cours
Maître d’ouvrage : Privé
Programme : Logement
Surface de référence énergétique : –
Volume SIA : –
Coût CFC 1-5 : –
Située dans le quartier vivant de Klybeck, à la jonction de Matthäus au Petit-Bâle, cette maison mitoyenne fait partie d’un ensemble typique de maisons ouvrières bâties entre 1890 et 1900. Ces constructions modestes, organisées en bordure d’îlots autour de cours intérieures, ont été pensées pour loger les ouvriers des industries bâloises en pleine expansion à cette époque. Le tissu urbain y est dense, marqué par une grande régularité bâtie et un fort caractère identitaire.
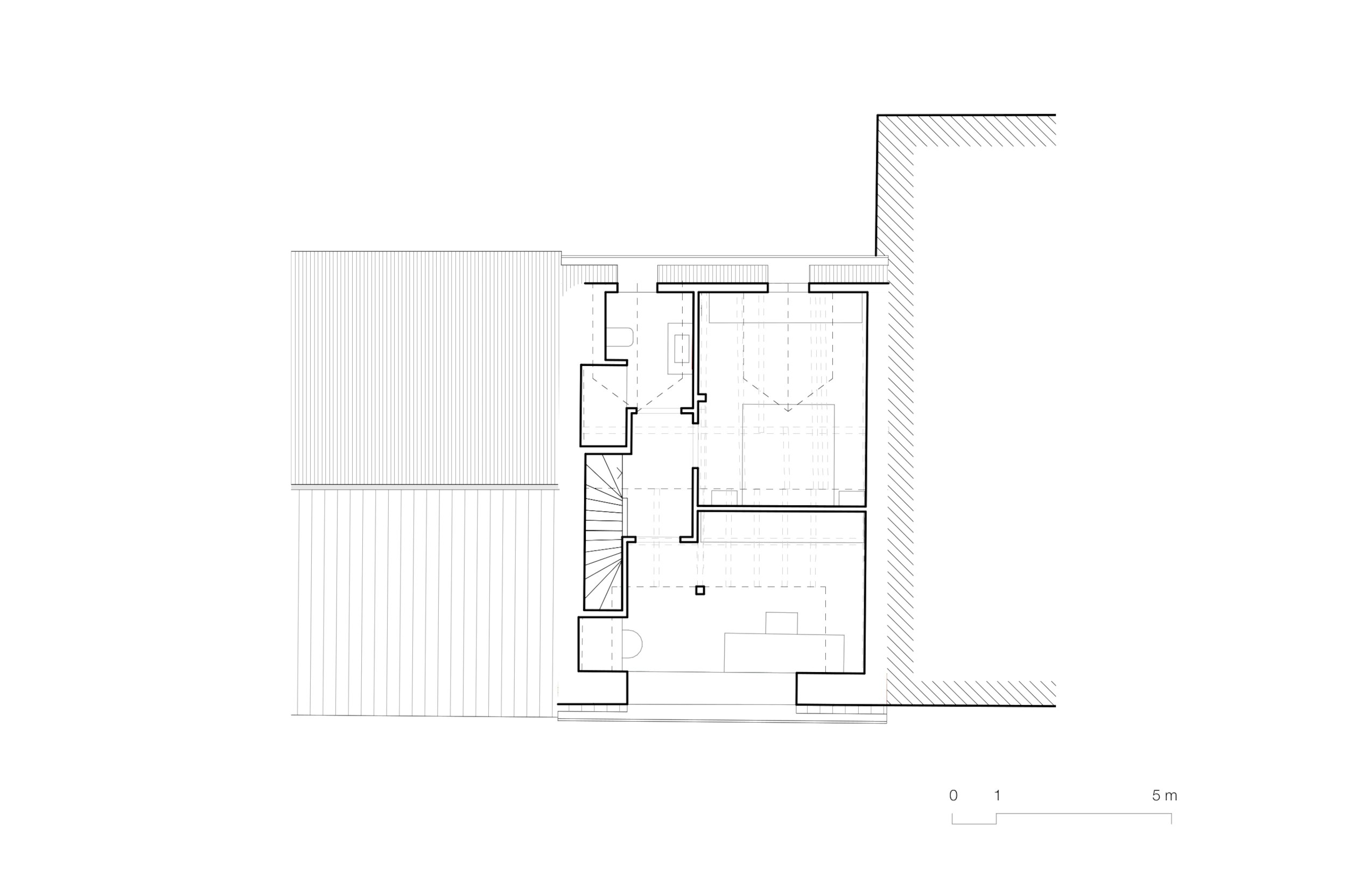
La villa, à la surface au sol réduite, se développe sur deux niveaux habitables, des combles, un sous-sol et un jardin côté cour. Le projet vise à réhabiliter cette habitation afin de l’adapter aux modes de vie contemporains tout en préservant l’esprit du lieu. L’organisation intérieure est entièrement repensée pour accueillir une famille avec quatre chambres à coucher, des pièces d’eau fonctionnelles ainsi qu’un espace de vie ouvert, lumineux et convivial.
Une attention particulière est portée à la rénovation énergétique du bâtiment, afin d’en améliorer durablement les performances tout en respectant le bâti existant. Cette transformation vise à offrir une seconde vie à cette maison centenaire, en conciliant confort, fonctionnalité et préservation du patrimoine urbain bâlois.
Crédit graphiques
Photos : –
Plans: –
Img. synthèse: –





