ACCUEIL PARASCOLAIRE
Bure (Jura) 2017 - 2022
Maître d’ouvrage : Commune de Bure
Programme : Infrastructure
Surface de référence énergétique zone concernée: 100 m2
Volume SIA zone concernée: 300 m3
Coût CFC 1-5 : 0.3 Mio
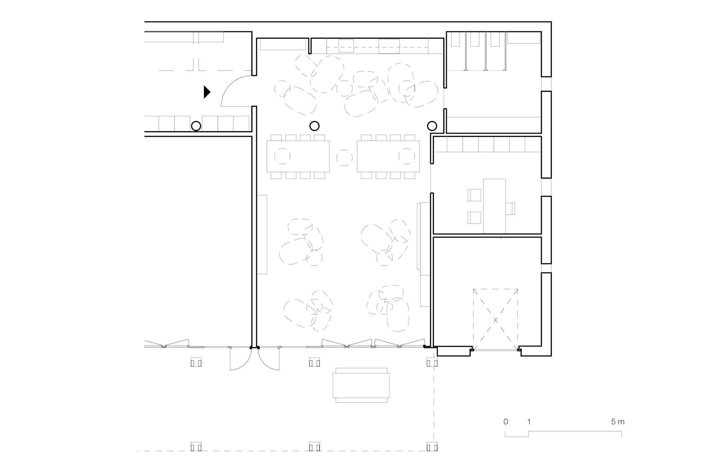
Le bâtiment de l’école primaire de Bure (cercle scolaire du Creugenat) a été transformé pour accueillir l’UAPE de Bure, gérée par la Maison de l’enfance de Porrentruy. Sa mission : accompagner les familles et offrir aux enfants un cadre d’accueil stimulant et bienveillant. À travers des activités variées, l’UAPE devient un lieu d’exploration, où mouvement, nature et repas équilibrés (label Fourchette verte) sont privilégiés. L’enfant s’y épanouit à son rythme, tout en découvrant la vie en collectivité.
Trois avant-projets, avec leurs estimations financières, ont permis d’examiner différentes options d’aménagement. Le projet retenu mise sur des interventions ciblées : les revêtements sont en grande partie conservés, sauf dans l’espace de jeux, où un linoléum naturel améliore le confort. Des panneaux acoustiques géométriques habillent le plafond, apportant confort sonore et touche ludique. Un bureau pour les éducatrices et de nouveaux sanitaires complètent le réaménagement.
Une attention particulière a été portée aux matériaux, afin de limiter les émissions de COV dans les peintures et revêtements. Les luminaires sont équipés de filtres adaptés aux yeux des enfants. Le mobilier a également été conçu pour accompagner leur développement, avec notamment des lavabos à hauteur variable.
Crédit graphiques
Photos : Coray Vallat architectes
Plans: Coray Vallat architectes
Img. synthèse: –











